Casă Tureni
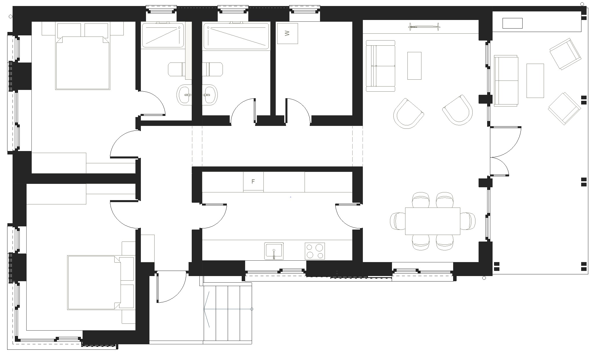
Proiectul a vizat extinderea și reconfigurarea unei case existente din satul Tureni, județul Cluj. Clădirea existentă este o casă parter, făcută după un proiect tip, în perioada comunista, fiind formata din doua camere de locuit, plus câteva dependințe. Clienții au dorit modernizarea și reconfigurarea spațiului existent, plus extinderea în plan cu o zona de living și o terasă acoperită. Casa parter a fost reconfigurată astfel încât spațiile proiectate să beneficieze de o relație cât mai bună cu spațiul exterior al curții și punctele cardinale. Imaginea exterioară a clădirii reia aspectul specific al caselor rurale din Transilvania, folosind materiale, tehnici de construcție și detalii moderne, astfel încât să ofere tot confortul necesar modern.
S-a păstrat organizarea casei pe un singur nivel (parter), cu un carport pentru două mașini amenajat în curte, în apropierea străzii de acces. La interior, zona de zi constă în camera de zi cu ișsire la nivel pe o terasă acoperită, bucătărie, sufragerie, baie, iar zona de noapte e formată din 2 dormitoare cu grup sanitar și dressing.
- An2022
- Indicatorifunctiune: locuire
regim de inaltime: P
A.C. = 145,00 mp
A.D. = 145,00 mp
S.U. = 90,95 mp - ClientA.I.C. si D.A.C.
- Status proiectÎn șantier
- CategoriesINTERVENȚIIREZIDENȚIAL
- Tagsarhitecturăcasă la țarăClujintervențielemnprispăreconfigurareruraltârnațtencuialăterasătradiționalTureni













